1008 21937 48 Avenue

Langley, BC
Presented by 
Chris Shea
Chris Shea
(604) 808-5732
iwta38

Virtual Tour



Photos



Video



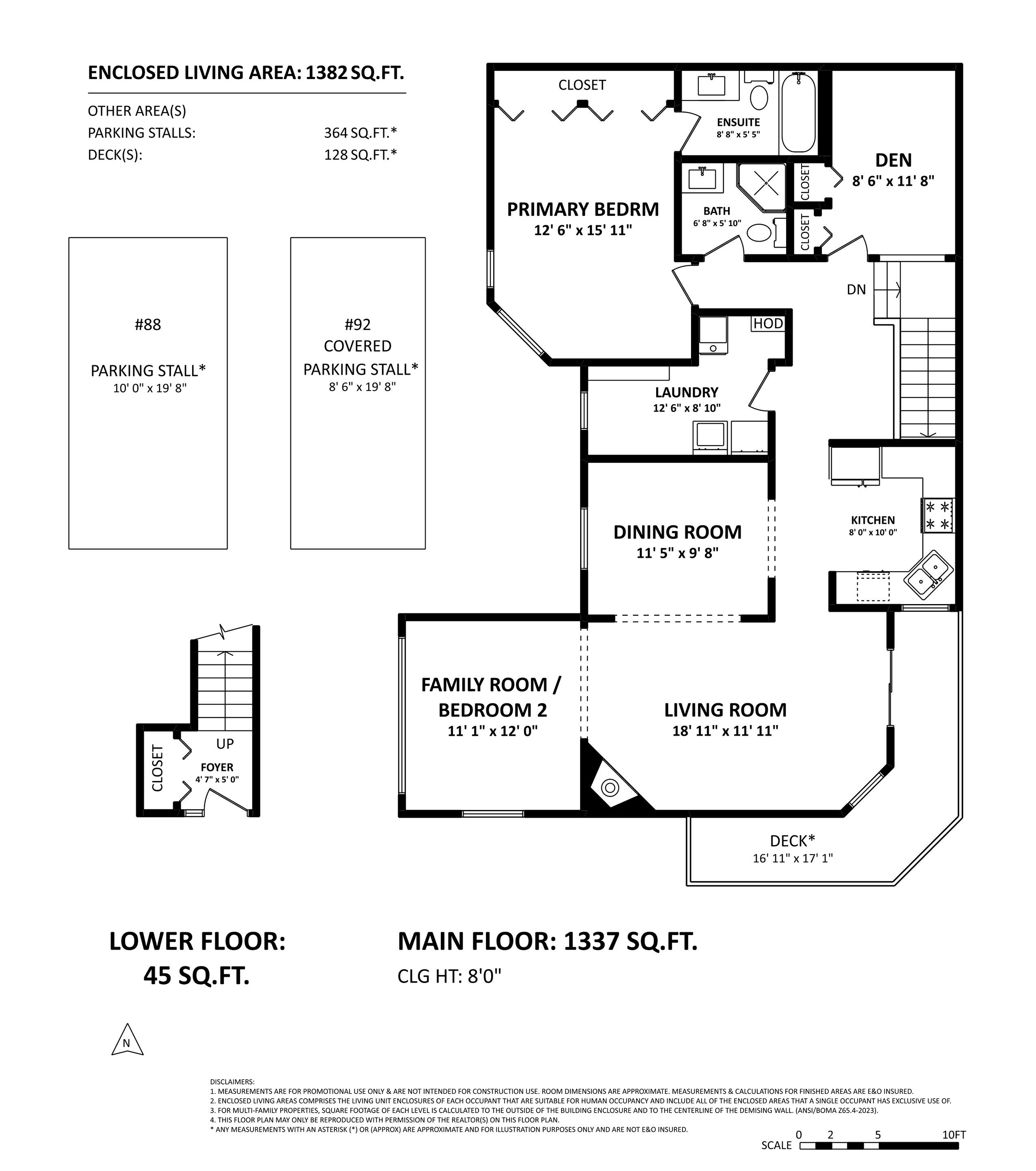
Floor Plan

VIEW FULL FLOOR PLAN
iuyb0s


Property Details

1008 21937 48 Avenue, Langley
$659,000
Dont miss this sparkling Upper Level 55+ home in sought after ORANGEWOOD Adult Community. Walk out your front door to all amenities including Shopping, Blair Rec Centre, professional and medical offices and Hospital too if needed. Stylish and extensive modern UPGRADES throughout. Offers great two Bedroom/Guest room Option, two full bathrooms & two car parking. Super alternative to condo living! Delightfully appointed stainless, work kitchen plus inviting, bright & spacious Living Room warmed by a natural gas F/P & a truly generous Master Suite w/full wall of closets. Many 10s of thousands $$$ spent here right down to rich, hardwood-style engineered flooring. So much more!! Active Clubhouse facility for your event rental, guest activities & Workshop too! Life is good in Orangewood!
MLS:R3113563
Bed:2
Bath:2
Size:1,383.00 sq.ft.
Type:Townhouse
Parking:2
Strata Fee:$414.58
Taxes:$1,875.50
Year Built:1990
Map
Street View
Walk Score
Presented by 
Chris Shea
Chris Shea
(604) 808-5732
icx5hn