477 Fraser Avenue

Hope, BC
Presented by 
TJ Lee<br>www.tjlee.ca
TJ Lee
www.tjlee.ca
HomeLife Advantage Realty Ltd.
iwta38

Virtual Tour



Photos



Video



Floor Plan

VIEW FULL FLOOR PLAN
iuyb0s


Listing Brochure

VIEW FULL LISTING BROCHURE
iik18k


Property Details

477 Fraser Avenue, Hope
$2,800,000
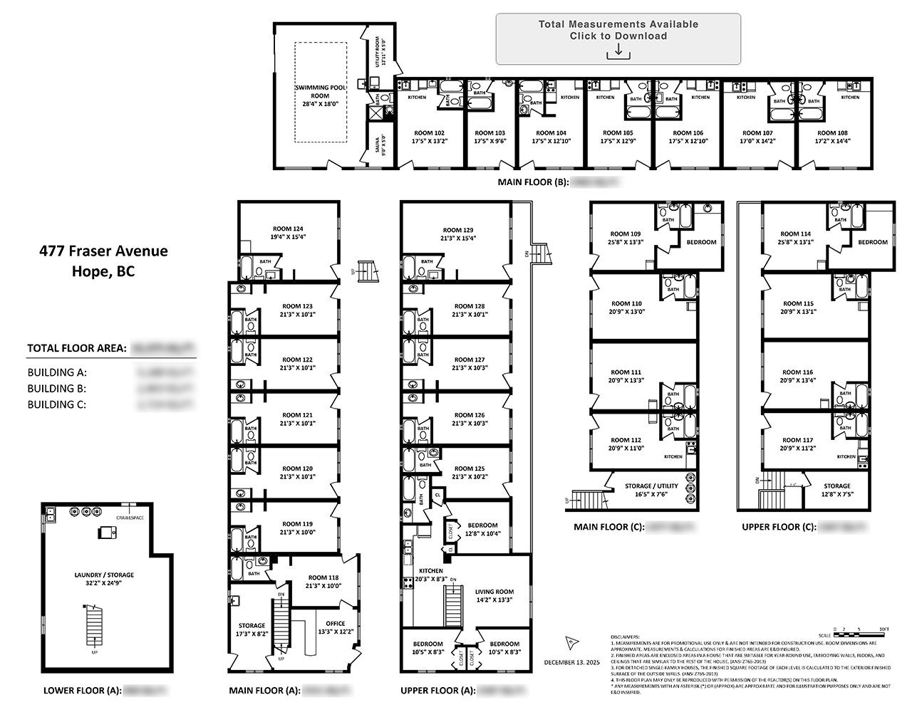
Great opportunity to buy well maintained 'RED ROOF INN MOTEL' in Hope. The current owner has been operating successfully for over 28 years. This motel has 3 buildings and large parking area. Total 27 guest rooms and large 3-bedroom suite for owner or manager. 8 units have kitchenettes. The indoor swimming pool area is currently used for storage, but it could be converted into guest rooms or breakfast serving area. Easy and safe access from Hwy 1 and close to Hope downtown. Customers are tourists, fishing/skiing/hiking people and workers. Dont miss Excellent LIVE/WORK BUSINESS with good income!
MLS:C8074460
Type:Business Opportunity
Map
Street View
Walk Score
Presented by 
TJ Lee<br>www.tjlee.ca
TJ Lee
www.tjlee.ca
HomeLife Advantage Realty Ltd.
icx5hn