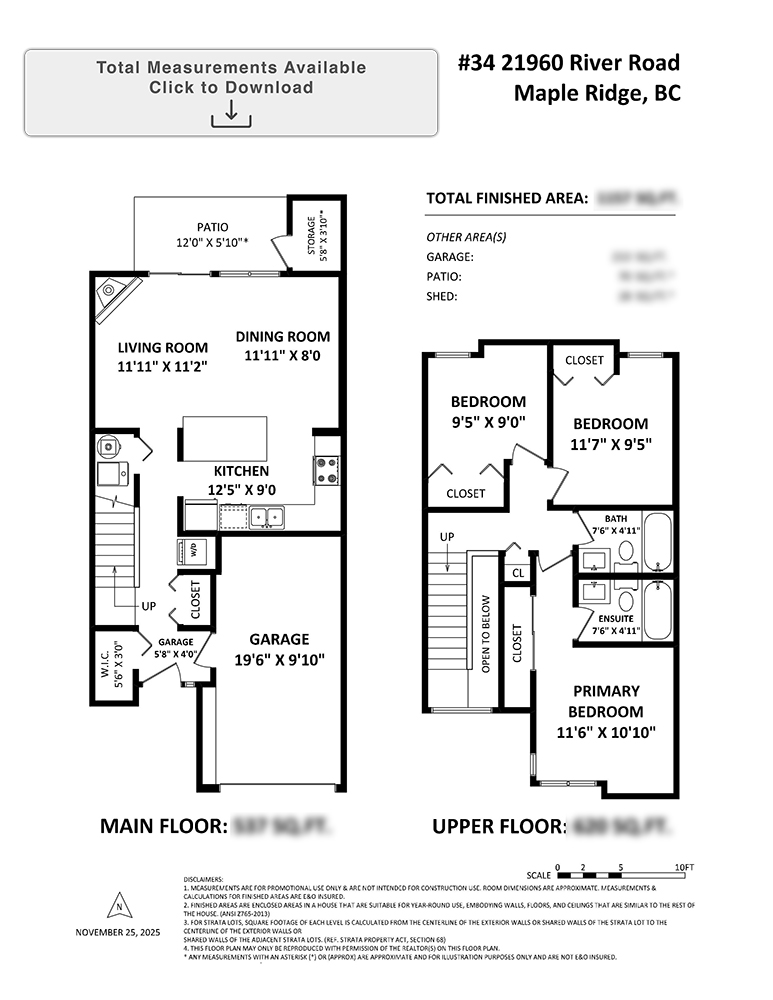
34 21960 River Road

Maple Ridge, BC
Presented by 
Angela Parrotta
iwta38

Virtual Tour



Photos



Video



Floor Plan

VIEW FULL FLOOR PLAN
iuyb0s


Property Details

34 21960 River Road, Maple Ridge
$649,900
Welcome to Foxborough Hills where the perfect home for FTHB and young families awaits!! This beautifully updated 3 bedroom, 2 full bathroom, townhome offers an open concept main floor perfect for entertaining & daily living, featuring a modern kitchen with quartz countertops, white shaker cabinets, S/S appliances and gas F/P to cozy up to this winter. Kids have too much energy? The playground awaits mere steps from your patio for easy access play and supervision. The neutral colour palette, updated flooring and refreshed bathroom vanities create clean contemporary feel throughout to your bedrooms & bathrooms upstairs. Enjoy single car garage + stall, in a pet friendly (large dogs too!) family oriented complex just steps from West Coast Express and all your daily needs!!
MLS:R3070018
Bed:3
Bath:2
Size:1,120.00 sq.ft.
Type:Residential
Parking:2
Strata Fee:$447.00
Taxes:$4,286.48
Year Built:1992
Map
Street View
Walk Score
Presented by 
Angela Parrotta
icx5hn