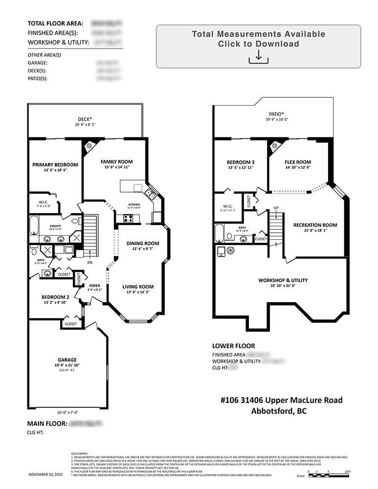
106 31406 Upper MacLure Rd

Abbotsford, BC
Presented by 
Chris Shea
Chris Shea
(604) 808-5732
iwta38

Photos



Video



Floor Plan

VIEW FULL FLOOR PLAN
iuyb0s


Property Details

106 31406 Upper MacLure Rd , Abbotsford
$748,000
SUPERB RANCHER TOWNHOME w/WALKOUT BASEMENT. Lovely setting in ELLWOOD ESTATES this fine residence offers nearly 3000 sq. ft, three bdrms (possibly more) & ideally suits retirement or family living. Lovely condition & spacious! Bright, south-facing Family room/kitchen & Master Bedroom suite have 8 foot sliding glass doors to generous 24 ft by 8 ft balcony/sundeck offering expansive View to valley & mountains. Second bedroom up is ideal Guest Room with private access to 2nd full bathroom. New American Standard Furnace, Hot Water tank one year old plus NEW ROOFS (3 yrs), throughout Ellwood. Two N/G Fireplaces, Skylighted entry hall, large Ensuite w/double vanity, shower, large soaker tub. Bsment has 3rd bedroom, Recreation Rm & dream Workshop & storage space. Immediate Possession possible!
MLS:R3067292
Bed:3
Bath:3
Size:2,342.00 sq.ft.
Style:Rancher/Bungalow w/Bsmt.
Type:Residential
Parking:2
Strata Fee:$658.00
Taxes:$3,513.03
Year Built:1998
Map
Street View
Walk Score
Presented by 
Chris Shea
Chris Shea
(604) 808-5732
icx5hn